新着情報

糸満市伊原♪使用用途ご相談賃貸物件のご案内!(^^)♪

糸満市♪用途ご相談賃貸物件のご紹介( *´艸`)

国道331号線沿い♪黒を基調としたスマートなテント2階建てになります!(^^)!天井高もあり、レイアウトのしやすい空間となっています♪
使用用途、引渡状況や契約内容などお気軽にご相談下さい♪♪

 
外観(外装改装済み)前面、シャッター及び、自動ドアあり♪

 
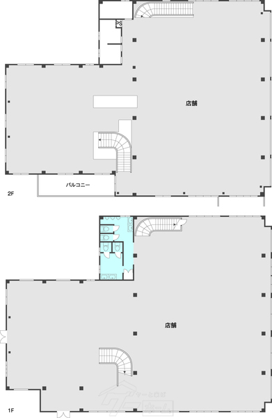
1階部分2階部分※間取り図と現況が異なる場合は現況を優先致します。


 
駐車場(配置など自由に決められます)
※30台:無料
駐車配置などはご相談下さい。(大型車両なども駐車可能です。)


【備考】
現地、随時案内中!ご予約頂いてからですとよりスムーズにご案内出来ます。
契約内容、契約期間、引渡渡し条件(現状渡しや、リフォーム後)などもお気軽にご相談下さい。
総床面積、1078.19㎡
内訳、1階(547.46㎡)2階(530.73㎡)
合計1078.19㎡


那覇空港まで・・・車で約27分)
空港自動車道名嘉地ICまで・・・車で約23分
北名城ビーチまで・・・車で約7分
平和記念公園まで・・・車で約7分
仮)コストコ沖縄まで・・・車で約27分

↓↓詳しい詳細↓↓
糸満市伊原の賃貸工場(礼金なし、154万円)|沖縄の賃貸情報【グーホーム】No.4752-207 (goohome.jp)

これから、沖縄に住む予定の方。これから県外への長期転勤が決まった方など・・etc・・・
是非『ココクラソ沖縄』に住まいのお手伝いをさせて下さい(^^♪

物件無料査定、買取、分譲マンション、賃貸管理物件募集中♪セカンドハウス・長期転勤・収益物件など分譲マンションを所有しているが、賃貸に出しているオーナー様。
是非、お手持ちのマンションをご紹介させて下さい♪

 

お問い合わせContact

ページトップ